Verkocht
Verkocht
APPARTEMENT 104m2 - 2 kamers 1180 UKKEL
Residentie CUYLITS39 omvat 6 appartementen gelegen in de driehoek: Winston Churchill, Brugmannlaan en Edith Cavell.
Het gebouw dateert van 1938 en werd in 1996 volledig en grondig gerenoveerd. Dubbel glas, recente verwarming, nieuwe leidingen en elektrische installatie.
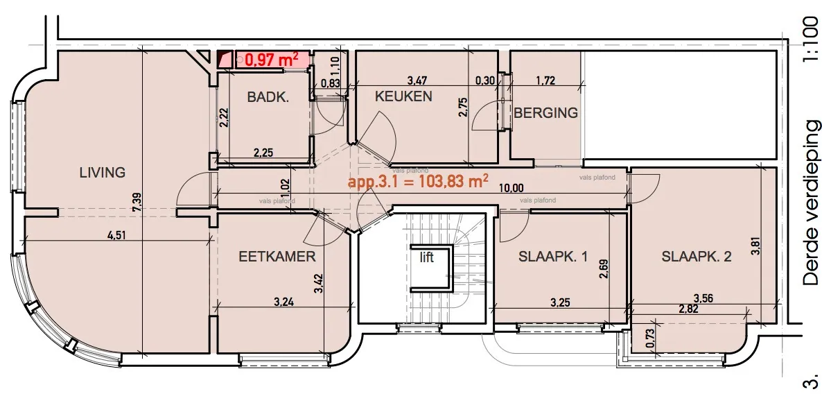
Het APPARTEMENT van 104m2 is gelegen op de 3de verdieping en beschik over een kelder van 8,2m2. Zie de plannen in PDF formaat op onze website.
De troeven van dit APPARTEMENT:
• living, eetplaats, gesloten keuken met berging of terras;
• 2 slaapkamers, badkamer (bad en douche) en afzonderlijke WC;
• recente CV op aardgas;
• voldoende parking in de buurt;
• centraal gelegen tussen de Winston Churchillaan en de Brugmannlaan, openbaar vervoer voor de deur.
Een overzicht van de beschikbare oppervlakte:
• leefruimte/living > 44m2;
• keuken > 9,5m2;
• kamer 1 > 15,6m2;
• kamer 2 > 9m2;
• kelder > 8,2m2.
Voor meer informatie of voor een bezoek ter plaatse kan u ons steeds contacteren per mail info@expertalbert.be of telefoon 02 308 00 00.
Vaste bezoekuren op woensdagnamiddag of zaterdagvoormiddag.
Zie ook onze website voor bijkomende details en plannen: http://www.expertalbert.be/projecten
| Adres: | Joseph Cuylitsstraat 39/3 Ukkel |
| Referentie: | EA_0284 |
| Vraagprijs: | Verkocht |
| Type: | Appartement |
| Beschikbaar vanaf: | Bij akte |
| Ligging: | In centrum, Stad, Aan rustige weg |
| Perceeloppervlakte: | 125 m² |
| Perceelbreedte: | 7 m |
| Perceeldiepte: | 18 m |
| Bebouwde opp.: | 118 m² |
| Bewoonbare opp.: | 104 m² |
| Type constructie: | Traditioneel |
| Bouwjaar: | 1938 |
| Renovatiejaar: | 1996 |
| Gevelbreedte: | 18 m |
| Bouwlagen: | 7 |
| Op verdieping: | 3 |
| Algemene staat: | Normaal |
| Kamers: | 7 |
| Slaapkamers: | 2 (15.5 m², 9 m²) |
| Badkamers: | 1 |
| WC: | 1 |
| Woonkamer: | 44 m² |
| Keuken: | 10 m², Gesloten keuken, Ingericht met toestellen |
| Terras: | 3 m² |
| Comfort: | Lift |
| Snelweg: | Ja - op 4000 m tot 5000 m |
| Bushalte: | Ja - op minder dan 500 m |
| Tramhalte: | Ja - op minder dan 500 m |
| Raamwerk: | PVC - 1996 |
| Dak: | Mansardedak |
| Dakbedekking: | Dakpannen |
| Gevel: | Plakwerk |
| Fundering: | Kelder |
| Beglazing: | Dubbel - 1996 |
| Waterleiding: | 1996 |
| Sanitair: | 1996 |
| Elektriciteit: | 1996 - conform |
| Verwarming: | CV-ketel, Individueel, Combiketel, Aardgas |
| Verwarmd water: | Individueel, Gas, Combiketel |
| Isolatie: | Dakisolatie - 1996 |
| Lift: | Ja |
| Internet: | Ja |
| Rolluiken: | Ja |
| Kadastrale benaming: | UKKEL AFD 8 Sectie B |
| Kadastrale Nummers: | 278 E21 |
| Kadastrale Oppervlakte: | 125 m² |
| Opmerking: | individuele kadastratie bedrag nog niet gekend - montant individuel cadastre pas encore connue |
| EPC Certificaat Nr.: | 20170514-0000504013-01-4 |
| EPC Index: | 261,00 kWh/(m² jaar) |
| Totaal verbruik: | 30732,00 kWh/(m² jaar) |
| EnergyClass: | E |
| EPC Geldig tot: | 14/05/2027 |
| Stedenbouwkundige vergunning: | Ja |
| Voorkooprecht: | Neen |
| Verkavelingsvergunning van toepassing: | Ja |
| Stedenbouwkundige bestemming: | Woongebied |
| Dagvaarding en herstelvordering: | Geen rechterlijke herstelmaatregel of bestuurlijke maatregel opgelegd |
| Overstromingsgevoelig: | Geen overstromingsgevoelig gebied |
| Overstromingsgebied: | Geen afgebakende zones |
| Erfgoed: | Geen beschermd erfgoed |
| Deze eigendom kan onderhevig zijn aan de renovatieverplichting die door de Vlaamse overheid wordt opgelegd voor residentiële gebouwen. Consulteer voor meer informatie de website van het Vlaams Energie- en Klimaatagentschap via https://www.vlaanderen.be/een-woning-kopen/renovatieverplichting-voor-residentiele-gebouwen | |